Kadıköy Belediye Hizmet Binası
┅►
#B25-02

Kadıköy Belediye Hizmet Binası

Ulusal Yarışma 2. Mansiyon

Osman Can Bagatır
Ece Kandemir
Ayşe Perk
Asuman Doğan
Meryem Albdülkadir
Almira Endican (Peyzaj Mimarı)


Coşkun Özden (Statik)
Talat Kurugöl (Mekanik)
Ertuğ Günay (Elektrik)

Görselleştirme:
Halil İbrahim Zeytinci

Tarih
2025
Tür Belediye Binası
Konum İstanbul
Parsel Alanı 21660 m2
Toplam İnşaat Alanı 49600 m2
Ödüller 2. Mansiyon
Durum Concept
İşveren İstanbul Büyükşehir Belediyesi
Giriş

TARİF / ÖLÇEK -KENTSEL SÜREKLİLİKLER /  FIRSATLAR

Kadıköy’ün İkilemi: Metropol-Sayfiye Algısında Bir Kent Parçası

*Kadıköy üzerine düşünmeye başladığımızda, kentsel mekânı bir çırpıda tarif etmek kolay olmasa da ‘metropolleşmekte olan bir sayfiye yeri’ ifadesinin yersiz olmadığını düşünüyoruz. Bu tanımın rahatsız edici bir yönü olduğu kadar, Kadıköy’ün hâlâ kendine has ve nitelikli bir kentsel mekân için müdahale imkânı sunduğunun farkında olduğumuzu da tanımladığını düşünüyoruz ve anlatı boyunca detaylanacak olan yaklaşımımızda önemli bir çerçeve çizici tanım olarak akılda kalmasını önererek başlamak istiyoruz.

Bir Zamanların Ölçekli Kıyı Yerleşimi * Pasajlar / Bahçeler / Çayırlar

Bugünün Kadıköy’ü yoğun dönüşüm ve göç ile kimlik karmaşası yaşasa da, mahalle ölçeğinde katman katman çeşitlenen ve kıyıyla sürekli bağ kurmaya çalışan bütüncül bir kent parçasını tarifliyor, Haydarpaşa / Rıhtım aksından başlayarak Bostancı’ya kadar devam eden 21km’lik kıyı hattı boyunca süren yaşantı ve bu yaşantının kısa kesitlerde iç mahallelere bağlanacak sinir uçlarını açması belki de hala ‘Kadıköy Ölçeğinin’ en önemli tarifleyicisi durumunda.  Kıyı-kent kurgusundaki bu güçlü sinir uçları / kentsel akslar  Kadıköy’ün ölçekli bir kıyı yerleşimi olduğu dönemlerden bu yana pasajlar – bahçeler – çayırlar gibi çeşitli mikro kent parçalarıyla ilişki kurarak kentsel mekanın zenginliğini daha da arttırıyor. Bu bütüncül / grift kentsel yaşantı, tüm kontrolsüz dönüşüme rağmen mekânsal belleği bir şekilde koruyor ve özgün bir kent kimliği tarifliyor.

Görseller

Kent Pasajı ve Salon Kadıköy
Kent Pasajı ve Salon Kadıköy

Kadıköy Belediyesi Hizmet Binası, hem mahalle hem de ilçe ölçeğinde önemli bir büyüklüğü tariflediği için, yapıya dair çözümlerimize geçmeden önce bahsettiğimiz kentsel nüvelerle ilişki kurma / onarma potansiyellerini aradık. Dolayısıyla doğru olanın bu kentsel sinir uçlarını bulmak ve önereceğimiz yapıyla kuracağı ilişkileri tarifleyerek kentsel yaşamı zenginleştirmek olduğunu düşünerek kararlarımızı aldığımızı söyleyebiliriz.

Tramvay Meydanı
Tramvay Meydanı

Planlanan Üsküdar - Kadıköy Tramvay Hattı Duraklarının yer aldığı ve aslında Hasanpaşa Mahallesi’nin de bir çeper olarak etrafını sardığı boşluk alana ‘TRAMVAY MEYDANI’, heykelin mevcut yerinde tanımlı bir kentsel öğe ve önemli bir yönelimi tarif etmesi dolayısıyla vaat et­tiği kamusal / bürokratik yüzün tuttuğu boşluğu önemseyerek bu hafızayı korumayı önerdik ve boşluk alana ikinci mey­dan olarak ‘BELEDIYE MEYDANI’ dedik. Yeni metro durağıyla beraber üst ölçekte önerdiğimiz ‘kentsel bağ’ ile de kentsel sürekliliklerini yeşil alan ekseninde kuracak olan boşluğu tutan ve öneri kütüphane pro­gramıyla tanımlanmış alanı da ‘KÜTÜPHANE MEYDANI’ olarak adlandırdık.

Terminal Kadıköy'den Belediye Kompleksine Bakış
Terminal Kadıköy'den Belediye Kompleksine Bakış

Kent Pasajı: Belediye Meydanı’nı Tramvay Meydanı’na bağlayan bu kentsel geçiş alanı, aynı zamanda yapı programını zemin katta bölerek yönetim birimleri ile salonları ayrı mekânlar olarak birbirleriyle ve kentle etkileşime açmayı amaçlıyor. Bu geçiş alanının üst ölçek kararlarımız olan Rıhtım-Gazhane promenadı ile sıkı bir kentsel bağ kuracağını düşünüyoruz.

Kütüphane Meydanından Yaklaşım
Kütüphane Meydanından Yaklaşım
Salon Kadıköy Fuaye
Salon Kadıköy Fuaye
Etkinlik Çayırından Belediye Binasına Yaklaşım
Etkinlik Çayırından Belediye Binasına Yaklaşım

©oliworks 2025

Fikir

3.jpg
alt text
pasajlar.jpg
konsept_fikir_1-01.jpg
konsept_fikir_2-02.jpg
konsept_fikir_3-03.jpg
konsept_fikir_4-04.jpg
eskiz-atrium1.jpg

Eskizler

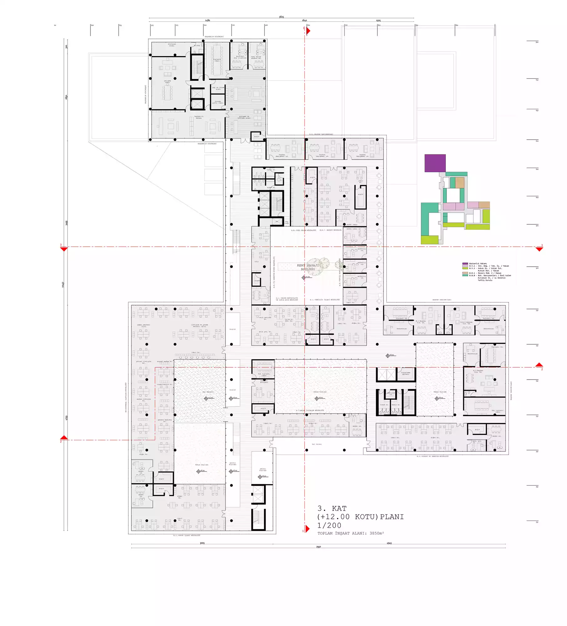
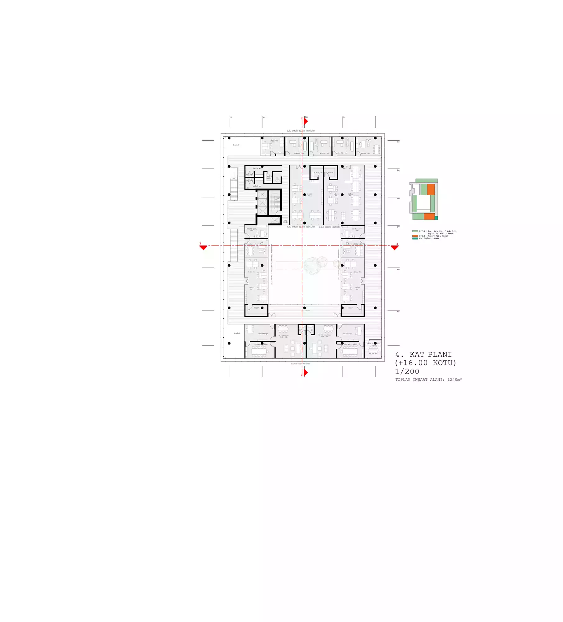
Zemin Planı

 
İlgili yazılar
 
İlgili Projeler